Wohnen am Park
Bad Dürrheim, Ecke Luisenstraße / Hofstraße
2 Gebäude
35 Wohnungen, davon 6 Penthouse-Wohnungen + 8 exklusive Terrassenwohnungen
Eigentumswohnungen • Gewerbefläche • Ferienwohnungen
Loggia / Dachterrasse
barrierefreier Zugang
Aufzug
große Fenster
hochwertige Ausstattung
Fußbodenheizung
bodengleich geflieste Dusche
Rollläden und elektr. Raffstore
jedes Haus hat eine eigene Tiefgarage
eigenes Kellerabteil
Photovoltaik-Anlage
Fahrradabstellraum
…
Wohnen am Park
im Herzen von Bad Dürrheim
Wir bieten Wohnungen für Menschen die mehr suchen als nur einen Wohnraum, für Menschen die auf der Suche nach einem Zuhause sind. Wohlfühlen, entspannen und sich individuell entfalten können – und das in jeder Lebensphase.
„Wohnen am Park“ bedeutet Raum für Lebensqualität.
Kurze Wege in die Stadt und die gute Infrastruktur sowie der direkte Zugang ins Grüne und zum Kapfwald machen aus diesem Wohnprojekt etwas ganz Besonderes.
Kapitalanlage:
– Wohnungen
– Gewerbeflächen
– Ferienwohnungen
Alle Wohnungen eigenen sich auch als Kapitalanlage.
Ebenfalls werden die Ferienwohnungen für Kapitalanleger angeboten.
Darum lohnt sich eine Kapitalanlage in dieser Immobilie:
- 1A Lage im Zentrum von Bad Dürrheim
- hochwertige, ökologische Bauweise
- geringe Nebenkosten
- echter Substanzwert
- mit „wenig“ Eigenkapital viel bewegen
- Schutz des Geldes vor Inflation
- langfristiger Vermögensaufbau
- klare Steuervorteile bei Gewerbeflächen
- werterhaltend und wertsteigernd
… und viele weitere Gründe!
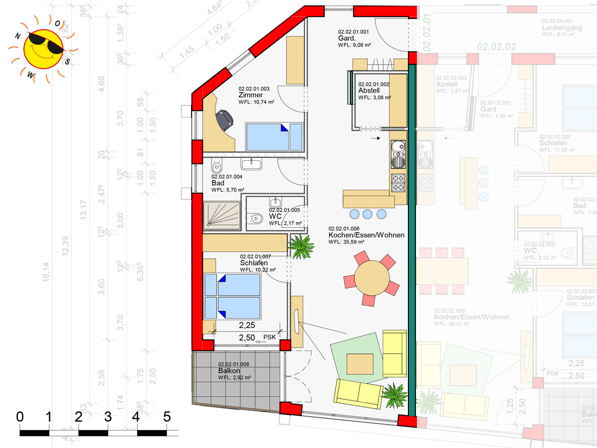
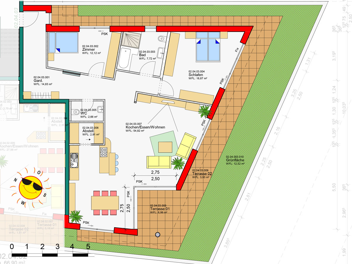
Die Wohnungen
Zeitgemäße Grundrisse und die gute Raumaufteilung lassen viele Möglichkeiten für eine kreative Raumgestaltung. Der offene Küchen-, Ess- und Wohnbereich wird für Sie zum neuen Lebensmittelpunkt.
Ob Fliesen, Parkett oder Vinylfußbodenbelag – Sie entscheiden, welche Bodenbeläge Ihr Zuhause haben wird. Dies gilt übrigens auch für die Wandbeläge. Sie erhalten von uns ein definiertes Budget in welchem Rahmen Sie frei entscheiden dürfen.
Die individuell für jedes Zimmer regelbare Fußbodenheizung sorgt für eine warme und angenehme Behaglichkeit. Loggien und großzügige Dachterrassen bieten den perfekten Platz zum Entspannen.
Alle bodentiefen Fensterelemente zu Terrassen und Balkonen sind mit Raffstore (horizontale Lamellen) und elektrischem Antrieb ausgestattet. Die Duschen sind bodengleich gefliest und im Bad ist zusätzlich ein Handtuchheizkörper vorgesehen. Für ein angenehmes Raumklima sorgt der stetige Austausch von Abluft und Frischluft.
Unsere Empfehlung
Kapitalanlage in Immobilien
Egal welche Gründe Sie für eine Kapitalanlage haben, sei es zur Altersvorsorge oder zum Vermögensaufbau, ein Immobilien-Investment bietet Ihnen langfristig sehr gute Ertragsmöglichkeiten und hilft Ihnen Vermögen aufzubauen. Profitieren Sie von der jährlich erwirtschafteten Rendite, dem
Wertzuwachs durch steigende Immobilienpreise und durch die Senkung Ihrer Steuerlast. Darüber hinaus bieten Immobilien einen guten Schutz vor Inflation und sorgen für finanzielle Sicherheit.
Unser Tipp:
Je besser die Lage eines Objekts, desto besser die Renditeaussichten.









































